Villa Muller, Part A Final.
Tuesday, April 16, 2013
·
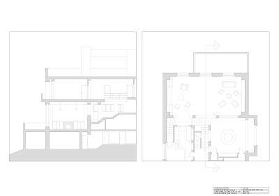
The representative part chosen was the connection between the main hall, dining and salon represented in the drawings and model. This part emphasized the contrast between the interior and exterior, where a simple white undecorated concrete “skin” encases the entire building hiding the lavishly furnished interior with comfortable furniture, marble wood and silk surfaces. Loos presented simplicity and plain elegance in the times of the luxury of ornament and chose to focuse upon functionality and economy. “The building should be dumb on the outside and only reveal wealth inside.” Adolf Loos
The representative part chosen was the connection between the main hall, dining and salon represented in the drawings and model. This part emphasized the contrast between the interior and exterior, where a simple white undecorated concrete “skin” encases the entire building hiding the lavishly furnished interior with comfortable furniture, marble wood and silk surfaces. Loos presented simplicity and plain elegance in the times of the luxury of ornament and chose to focuse upon functionality and economy. “The building should be dumb on the outside and only reveal wealth inside.” Adolf Loos
Labels: arch1201
Blogging the life of a second year architectural studies student at unsw.
